1101 Walnut Street, Kansas City, MO 64106

     
  • 1Beds
  •   
  • 2 Baths
  •  
  • 0½ Baths
  •  
  • 1,450Sq Ft
Mortgage Calculator

$280,000
 est. $1,229/mo

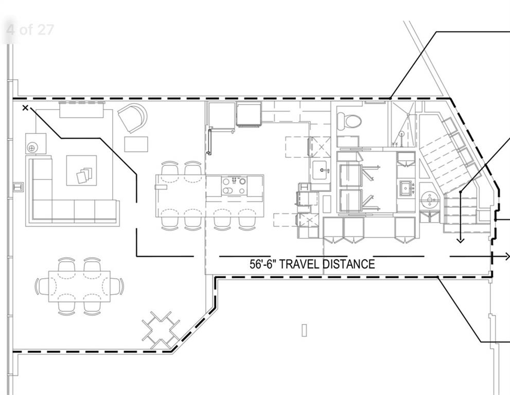
A Rare Opportunity at Wallstreet Tower Step into the only two-story condominium in all of Wallstreet Tower — a true blank canvas ready to be transformed into your personalized masterpiece. This raw shell space offers the freedom to design every finish, fixture, and feature exactly to your taste. With soaring floor-to-ceiling south-facing windows, the home is bathed in natural light and overlooks the tranquil park below — an unmatched urban view in downtown Kansas City. The current plan envisions a one-bedroom, two-bath layout with a spacious walk-in closet, though there’s ample room to configure a second bedroom or flex space on the main level. Enjoy the prestige of Wallstreet Tower living — 2 secure parking spots, 24-hour concierge, rooftop pool, fitness center, theater room, and sky-deck access — all just steps from the Power & Light District, streetcar line, and KC’s finest dining and entertainment. Whether you’re an investor, designer, or visionary buyer, this is your chance to create something truly one-of-a-kind in the heart of downtown. Permits already approved. See architectural drawings in supplements.

Directions
I35 N, exit onto Broadway, keep right onto Broadway Blvd, left onto Broadway Blvd, right onto W 12th St, left onto Walnut St, destination is on your right. Guest and street parking are available.
Subdivision
Wallstreet Towers
City
Kansas City
County
Jackson
Property Type
Residential / Condominium
Listing Updated
Mar 14, 2026 at 6:03pm
MLS Number
2584489
Property Tax
$2,134
Home Owners Association
Yes
Disclaimer
The information displayed on this page is confidential, proprietary, and copyrighted information of Heartland Multiple Listing Service, Inc. (“Heartland MLS”). Copyright 2026, Heartland Multiple Listing Service, Inc. Heartland MLS, Elite Realty and Agent Jo do not make any warranty or representation concerning the timeliness or accuracy of the information displayed herein. In consideration for the receipt of the information on this page, the recipient agrees to use the information solely for the private non-commercial purpose of identifying a property in which the recipient has a good faith interest in acquiring.
The data relating to real estate displayed on this website comes in part from the Heartland Multiple Listing Service database compilation. The properties displayed on this website may not be all of the properties in the Heartland MLS database compilation, or all of the properties listed with other brokers participating in the Heartland MLS IDX program. Detailed information about the properties displayed on this website includes the name of the listing company.
Information is deemed reliable but is not guaranteed.

Copyright © 2026 ELITE Realty.