19610 W 201st Street, Spring Hill, KS 66083

     
  • 4Beds
  •   
  • 3 Baths
  •  
  • 0½ Baths
  •  
  • 2,511Sq Ft
Mortgage Calculator

$439,990
 est. $2,323/mo

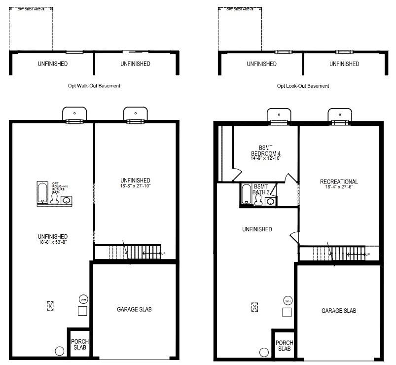
46 - 90 Day Completion + Seller-Paid Closing Costs with Preferred Lender! Welcome to Woodland Crossing in Spring Hill! Meet the New Castle by D.R. Horton—a stunning home featuring a 2-car garage, full finished basement, and 4 bedrooms / 3 bathrooms. This layout blends style, space, and modern comfort effortlessly. Inside, enjoy 9-ft ceilings, luxury vinyl plank flooring, and an open-concept design that flows from the living area into a chef-inspired kitchen with painted maple cabinetry, quartz countertops, and Whirlpool® stainless steel appliances. Step onto your spacious deck, perfect for morning coffee or evening hangouts. Your private primary suite features a tiled shower, dual vanity, and a generously sized closet. This home also includes D.R. Horton’s signature Smart Home package—Honeywell® Pro Z-Wave® thermostat, Amazon Echo, Home Control panel—plus LED lighting, low-E windows, and a high-efficiency gas furnace for year-round comfort & savings.

Directions
From 169 HWY, go East on 199th Street. Turn RIGHT onto Woodland Lane. Turn LEFT into Woodland Crossing on W. 200th Street. Turn RIGHT onto Cornice Street. The home will be on your right.
Subdivision
Woodland Crossing
City
Spring Hill
County
Johnson, KS
Property Type
Residential / Single Family Residence
Listing Updated
Apr 21, 2026 at 12:04pm
MLS Number
2594771
Property Tax
$8,050
Home Owners Association
Yes - Woodland Crossing Homes Association, Inc.
Disclaimer
The information displayed on this page is confidential, proprietary, and copyrighted information of Heartland Multiple Listing Service, Inc. (“Heartland MLS”). Copyright 2026, Heartland Multiple Listing Service, Inc. Heartland MLS, Elite Realty and Agent Jo do not make any warranty or representation concerning the timeliness or accuracy of the information displayed herein. In consideration for the receipt of the information on this page, the recipient agrees to use the information solely for the private non-commercial purpose of identifying a property in which the recipient has a good faith interest in acquiring.
The data relating to real estate displayed on this website comes in part from the Heartland Multiple Listing Service database compilation. The properties displayed on this website may not be all of the properties in the Heartland MLS database compilation, or all of the properties listed with other brokers participating in the Heartland MLS IDX program. Detailed information about the properties displayed on this website includes the name of the listing company.
Information is deemed reliable but is not guaranteed.

Copyright © 2026 ELITE Realty.