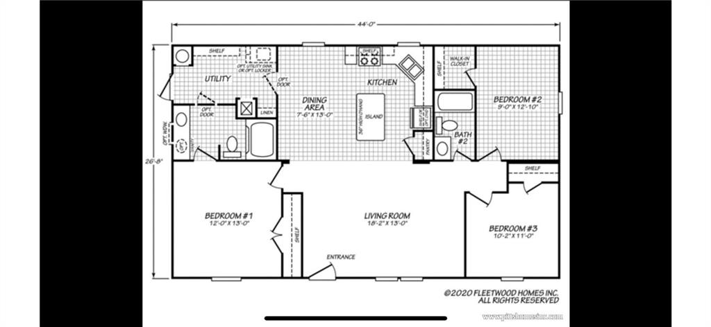
Lake Life Made Easy at Pomme de Terre Lake - Welcome to your perfect weekend escape! This fully furnished 3-bedroom, 2-bath lake house at Pomme de Terre Lake offers the ideal blend of comfort, convenience, and fun at PDTL. Located less than a quarter mile from the water, you’re just minutes from boating, fishing, and all things lake life. The home comes furnished with everything you need, including all appliances and a washer and dryer—making this a truly turnkey opportunity. Simply bring your clothes, food, and friends, and start enjoying lake life right away. Enjoy easy access to a nearby boat ramp and a golf cart–friendly community that makes getting to and from the lake a breeze. The property also features a spacious detached 20x40 garage w/ electricity for your RV, perfect for storing boats, jet skis, RV's, and all your lake toys. With a comfortable layout, three bedrooms, and two bathrooms, this home is ideal for weekend getaways, hosting family and friends, or even as a potential short-term rental. Whether you’re looking for a personal retreat or an investment near the lake, this property checks all the boxes.
Copyright © 2026 ELITE Realty.