3232 N Forest Avenue, Kansas City, MO 64116

     
  • 3Beds
  •   
  • 3 Baths
  •  
  • 0½ Baths
  •  
  • 2,802Sq Ft
Mortgage Calculator

$319,000
 est. $1,477/mo

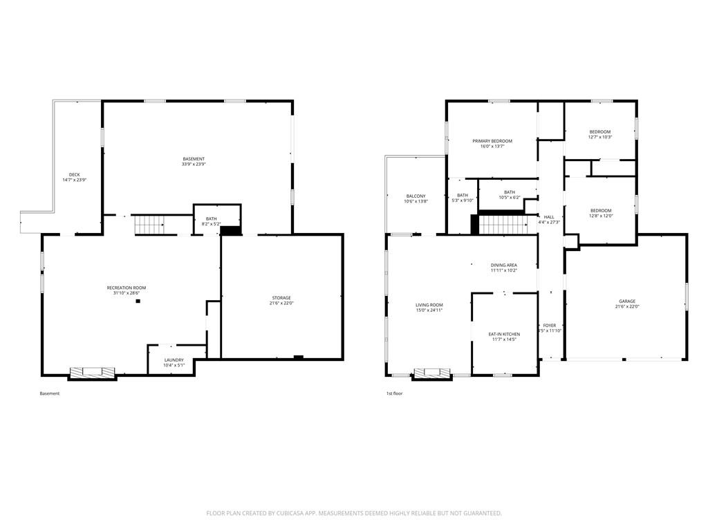
Brick ranch on a secluded 0.6-acre lot in a wooded subdivision with city views! This 3 bed, 3 bath home offers 2,625 finished SF plus 816 unfinished SF in the walk-out basement with workshop, storage, and laundry hookups. Features include a primary bedroom on the main level, 2 fireplaces, 2-car attached garage, two-level deck, and hardwoods under carpet on the main level. Energy-efficient hydronic baseboard heat and 200 AMP breaker box. Major updates include a septic tank replaced in 2025 and a complete roof removal/replacement in 2016. Large sloped lot is ideal for sledding, terracing, or enjoying the mature trees and private setting. Located in the award-winning North Kansas City School District. Bidding ends May 15 at 1PM.

Directions
From Downtown KC, take the I-29 north, take the Armour Rd. exit, turn left on Armour Rd, turn right on Iron St., merge onto Howell St., turn right on NE 32nd Terrace, turn left on N Troose Ave, and then right on N Forest Ave. The home is at the end of the cul-de-sac on the right-hand side.
Subdivision
Riverview
City
Kansas City
County
Clay
Property Type
Residential / Single Family Residence
Listing Updated
Apr 16, 2026 at 10:04am
MLS Number
2612823
Property Tax
$3,343
Home Owners Association
No
Disclaimer
The information displayed on this page is confidential, proprietary, and copyrighted information of Heartland Multiple Listing Service, Inc. (“Heartland MLS”). Copyright 2026, Heartland Multiple Listing Service, Inc. Heartland MLS, Elite Realty and Agent Jo do not make any warranty or representation concerning the timeliness or accuracy of the information displayed herein. In consideration for the receipt of the information on this page, the recipient agrees to use the information solely for the private non-commercial purpose of identifying a property in which the recipient has a good faith interest in acquiring.
The data relating to real estate displayed on this website comes in part from the Heartland Multiple Listing Service database compilation. The properties displayed on this website may not be all of the properties in the Heartland MLS database compilation, or all of the properties listed with other brokers participating in the Heartland MLS IDX program. Detailed information about the properties displayed on this website includes the name of the listing company.
Information is deemed reliable but is not guaranteed.

Copyright © 2026 ELITE Realty.