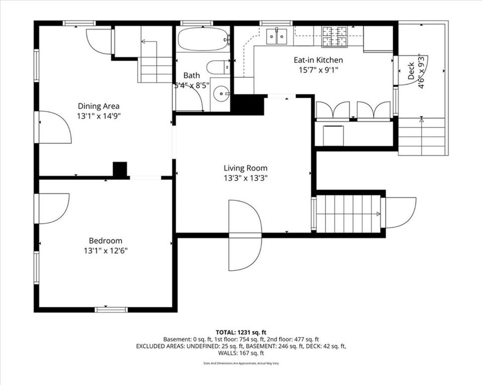
Welcome to 9101 Holmes Road, a rare and captivating 1910 farmhouse that offers an expansive escape right in the heart of KC. This historic home sits on a nearly one-acre corner lot, which is hard to find within city limits. The residence is defined by its classic architecture and an abundance of natural light that flows through every room, creating a bright and welcoming interior. Recent improvements include a brand-new roof and tankless water heater, ensuring the home is as functional as it is charming. The exterior of the property is a true outdoor sanctuary, designed for both relaxation and large-scale entertaining. The backyard features a custom paver patio with a built-in fire pit, serving as the perfect centerpiece for evening gatherings. Choose from three separate decks to take in the views of the massive grounds, with two of the decks being covered to provide year-round enjoyment regardless of the weather. For the hobbyist or gardener, this property is a dream come true. It offers a huge fenced garden area ready for seasonal planting and a versatile outbuilding equipped with electricity, making it ideal for a workshop, studio, or additional storage. This unique estate offers a peaceful, farmhouse lifestyle without sacrificing the convenience of city living.
Copyright © 2026 ELITE Realty.